★☆2024年製!中古■ホシザキ■プレハブ冷凍庫 PF-22CC-1.19  冷凍ユニット/HUS-11FC-UCIセット フリーザー 1.19坪 引き取り歓迎☆★

★☆2024年製!中古■ホシザキ■プレハブ冷凍庫 PF-22CC-1.19  冷凍ユニット/HUS-11FC-UCIセット フリーザー 1.19坪 引き取り歓迎☆★ 收藏

当前价格: 450000 日元(合 22365.00 人民币)

一口价: 480000 (合 23856.00 人民币)

剩余时间:16597.4707874

商品原始页面

成为包月会员,竞拍更便捷

出价竞拍

一口价

预约出价

收藏商品

收藏卖家

费用估算

拍卖号:m1168955500

开始时间:10/17/2025 22:18:29

个 数:1

结束时间:10/23/2025 21:18:29

商品成色:二手

可否退货:不可

提前结束:可

日本邮费:买家承担

自动延长:可

最高出价:

出价次数:0

卖家账号:sai******** 收藏卖家

店铺卖家:不是

发货地:岩手県

店家评价:好评:1587 差评:1 拉黑卖家

卖家其他商品: 查看

  • 1、【自动延长】:如果在结束前5分钟内有人出价,为了让其他竞拍者有时间思考,结束时间可延长5分钟。
  • 2、【提前结束】:卖家觉得达到了心理价位,即使未到结束时间,也可以提前结束。
  • 3、参考翻译由网络自动提供,仅供参考,不保证翻译内容的正确性。如有不明,请咨询客服。
  • 4、本站为日拍、代拍平台,商品的品质和卖家的信誉需要您自己判断。请谨慎出价,竞价成功后订单将不能取消。
  • 5、违反中国法律、无法邮寄的商品(注:象牙是违禁品,受《濒临绝种野生动植物国际贸易公约》保护),本站不予代购。
  • 6、邮政国际包裹禁运的危险品,邮政渠道不能发送到日本境外(详情请点击), 如需发送到日本境外请自行联系渠道。
★☆2024年製!中古■ホシザキ■プレハブ冷凍庫 PF-22CC-1.19  冷凍ユニット/HUS-11FC-UCIセット フリーザー 1.19坪 引き取り歓迎☆★

※質問は追加説明でのお答えとなります。
商品説明
※質問は追加説明でのお答えとなります。
2024年製!中古■ホシザキ■プレハブ冷凍庫 PF-22CC-1.19  冷凍ユニット/HUS-11FC-UCIセット フリーザー 1.19坪引き取り歓迎です。

・当方買受品です。屋内設置、解体前に動作確認済み、冷媒ポンプダウン済みです。

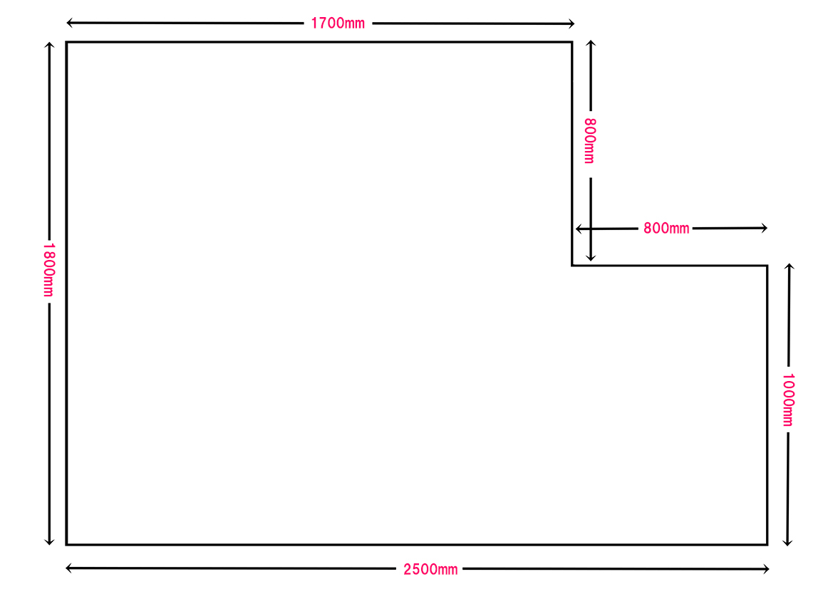
・2500×1800角の右奥角を80×80cm角カットした(建物の柱に沿った)1.19坪オーダーの形になっております。外寸サイズは図面を作成しましたので写真をご確認願います。

・ケーブル類は両端部分は残しておりますが、壁に入っていた部分はカットしております。必要に応じて延長していただく事ご了承ください。

・24年製ですが中古につき使用汚れ等あります、またパネルの接合部のコーキング跡あり、接合部分プラスチックが一部解体時にヒビ、カケができた箇所があります。動作に影響ない程度かと思いますが現状渡しで御理解願います。

・当方では設置、工事は行っておりません。落札者様で組み立てと工事手配をお願いいたします。


・程度につきましては写真でご判断できる方のみご入札お願いします。
・ノークレーム・ノーリターンでお願いします。

・良心的なお取引のできる方に限らせて頂きます。


――――――――――――――――――――――――――――――
●商品内容をよくお確かめの上ノークレーム&ノーリターンでお願いします
●商品に完璧をお求めの方、神経質な方は入札を御遠慮願いします
注意事項
●新品、未使用等の記載が無い物は基本的に中古品になります
●ノークレーム&ノーリターンでお願いします、落札後のキャンセルはお受けできません、間違え入札も終了後はキャンセル不可ですので御了承下さい
●初期動作不良は商品到着後4日以内に御連絡頂ければ対応いたします(ジャンク及び現状渡しを除く)
●オークション終了後48時間以内に連絡の無い場合はキャンセル扱いになる場合があります、その場合評価に-マイナスがつきますので御了承下さい
●評価に-(マイナス)がある方、新規の方は入札をお断りする場合があります
●御入金はオークション終了後速やかに願います、当日~2日以内まで御入金出来る方に限らせていただきます
●夜間8時以降は御質問への回答及び御連絡ができない場合があります
●取り置きはしておりませんので御了承下さい(御入金後すぐ発送いたします)

当方では取引ナビ以外でのご連絡は致しておりませんのでご注意ください。
メールでの連絡が来た際には振込み等せず取引ナビに一度ご連絡ください。
発送詳細

重量物の為発送は以下のいずれかになります
・直接引き取り(場所:岩手県盛岡市)
もしくは
・自社便(地域限定)めやす東北地域2万円、北関東25,000円
※上記以外の地域は自社配送できません。落札者様で手配をお願いいたします。
※自社便は当方都合の受け渡し日時になりますのでご了承ください
※設置や手運び作業はいたしません。軒先渡しになりますのでお手伝いをお願いいたします。
こちらの商品案内は 「■@即売くん5.40■」 で作成されました。



(2025年 3月 5日 10時 35分 追加)
自社配送は北関東までとさせて頂いておりますのでご了承下さい。

(2025年 4月 19日 17時 05分 追加)
申し訳ございませんが自社便は北関東までとさせて頂いておりました。

(2025年 4月 19日 17時 10分 追加)
そちらでトラックを用意できるのであれば、東北道にて当方指定の日時、時間、サービスエリア内での受け渡しは可能となります。 ご検討下さい。

(2025年 5月 28日 11時 39分 追加)
メーカーページで-30℃~-4℃となっております。
出价者 信用 价格 时间

推荐